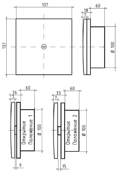
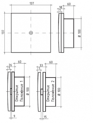
Приточный клапан КИВ К1 – механическое устройство, не требует электрозатрат! Работает на приток свежего воздуха в помещение. Приточный клапан организует воздухообмен таким образом, что избавляет от необходимости вентилировать помещения в режиме микро проветривания, предусмотренного ПВХ-стеклопакетами
Конструкция клапана позволяет регулировать нужный приток свежего воздуха в помещение без потери тепла.







